< Back to search results
Westbury Terrace, Forest Gate
Westbury Terrace in Forest Gate is your quintessential East London street; a handsome row of Victorian terraces with bags of character, perfectly placed in a neighbourhood that’s buzzing with new energy and community spirit.
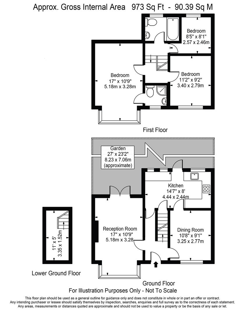
- Double fronted period home
- Three bedrooms
- En-suite to principal
- Two large reception rooms
- South facing garden
- Well-presented throughout
- Potential to extend (STPP)
- Cellar
- 0.5 Miles to the Elizabeth Line
- Surrounding by high performing schooling
Families will love the stellar school options on the doorstep, there are three Ofsted rated Outstanding primary schools just a short stroll away: Sandringham (0.2mi), Elmhurst (0.6mi), and Monega (0.7mi). For the older children, there’s St Angela’s Ursuline (0.4mi) – an Ofsted rated outstanding Secondary School. Getting around couldn’t be easier. You’ve got Forest Gate Station (Elizabeth Line, 0.5mi) just up the road. Plus, there’s Woodgrange Park (Overground, 0.7mi) and Stratford Station & Westfield Shopping Centre (2.2mi) close by for even more connections.
Step across the charming black and white mosaic pathway, framed by a manicured hedge and classic brick wall, and into the elegant central hallway of this double-fronted Victorian home which is both beautifully laid out generously proportioned. Either side of the hallway you’ll find two spacious reception rooms perfect for hosting, lounging, or creating a dedicated work-from-home space. The living room flows effortlessly out to a raised deck, overlooking a lush, south-facing garden that’s bursting with established, cottage-style planting.
To the rear, the sleek, modern kitchen also opens directly onto the garden, making al fresco dining a breeze. There’s access to a handy cellar from the kitchen ideal for stashing bikes, wine, or all those extras you want out of sight. Upstairs, you’ll find three bedrooms, off of the characterful split level landing, the generous principal bedroom complete with en-suite shower room. The main bathroom is fully tiled, modern, and ready for busy mornings or long evening soaks. With scope to convert the loft and extend to the rear (STPP).
EPC Rating: D68
Council Tax Band: C
An Anti-Money Laundering fee will be applicable to all purchasers at a cost of £18.00 per person.
-
Share this Property
View
Council Tax Band
Band C
Parking
Ask Agent
Garden
Ask Agent
Accessibility
Ask Agent
Tenure
Freehold
Electric
Ask Agent
Water
Ask Agent
Heating
Ask Agent
Broadband
Ask Agent
Sewerage
Ask Agent
Private rights of way
Ask Agent
Public rights of way
Ask Agent
Listed property
Ask Agent
Restrictions
Ask Agent
Flooded in last 5 years
Ask Agent
Flood defenses
Ask Agent
Source of flood
Ask Agent

