< Back to search results
Langley Drive, Wanstead
*SOLD BY PETTY SON & PRESTWICH* Perfectly positioned at the very start of Langley Drive, and within earshot of the charming chimes of St Mary’s Church, Petty Son & Prestwich are thrilled to present this generously proportioned, character-filled six-bedroom family residence.
- Substantial, six bedroom Edwardian family home
- Popular 'Warren Estate'
- Two characterful reception rooms
- Beautifully extended kitchen/dining room
- Two bathrooms
- Beautifully established rear garden
- Off road parking for two vehicles
- Indian Sandstone paving to the driveway and rear patios
- 0.4 Miles from Wanstead High Street
- 0.3 Miles from the entrance to Wanstead Park
*SOLD BY PETTY SON & PRESTWICH* Set within the prestigious Warren Estate, this beautifully appointed Edwardian family home enjoys a prime position. In between the tree-lined walks and formal parks of Wanstead Park (0.3 Miles) and the vibrant buzz of Wanstead High Street, with access to the City via Wanstead’s Central Line Station just 0.4 miles away, this location truly offers the best of both worlds. Ideal for both commuters and families alike, you’ll find a fantastic selection of nurseries and highly regarded schools within easy reach. With a wealth of leisure options right on your doorstep, from Wanstead Golf Club, Cricket Club and two Tennis Club’s, there's no shortage of ways to unwind close to home.
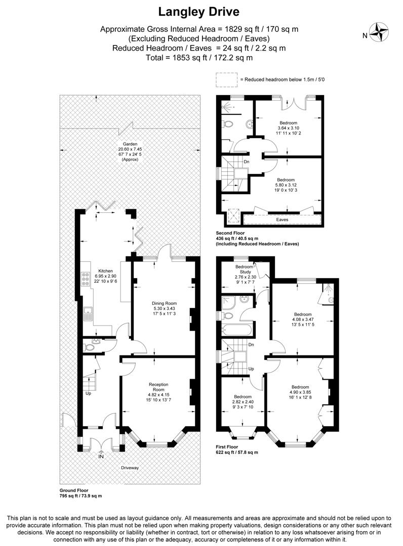
With generously proportioned rooms throughout and character in every corner, this impressive residence offers a wealth of versatile space, ideal for modern family living, creative layouts, or future enhancement to truly make it your own. Commencing with an enclosed porch, ideal for muddy boots and framed by bespoke stained glass windows, the porch leads to a wide entrance hall and from there to two elegant formal reception rooms. Both receptions provide abundant character and charm, each showcasing impressive fireplaces, deep cornicing, and high skirting. The front reception is bathed in natural light via a generous bay window, while the rear reception boasts direct access to the patio and beautifully maintained rear garden, perfect for both entertaining and quiet family evenings. The adjacent kitchen to the rear has been thoughtfully extended to incorporate a bright and spacious dining area, perfectly designed for modern family life. Flanked by bi-fold doors on two sides, the space can be seamlessly opened-up to the surrounding patio and mature rear garden, creating a wonderful sense of flow between indoors and out - ideal for al fresco dining, summer entertaining, or simply enjoying the tranquillity of your own green oasis. There is also a handy downstairs W.C which completes the ground floor accommodation.
The first floor hosts four well-appointed bedrooms, including two generous doubles, one with an en-suite shower room, a further double bedroom and a spacious single, ideal for a nursery, home office or guest room. Serving this floor is a contemporary, fully tiled family bathroom, featuring a bath with recessed shower, as well as a separate walk-in shower cubicle, offering both style and practicality for busy family life. The loft has been expertly converted to create two additional double bedrooms, one with eaves storage and served by a stylish shower room featuring a spacious walk-in shower. The larger of the two bedrooms enjoys a Juliette balcony with a notably private outlook, thanks to the unique angle of the road, ensuring that no neighbouring properties directly overlook the rear of the home.
That sense of privacy continues in the beautifully landscaped rear garden, where mature trees and informal,
well established planting evoke the feel of a secluded cottage garden. Starting with a raised patio area ideal for outdoor dining, the garden leads down to a central lawn bordered by vibrant, well-stocked flower beds. At the far end, a ‘hidden’ patio area and two discreet storage sheds are tucked away behind colourful shrubs, offering a peaceful retreat and added practicality, all cleverly designed to stay out of sight from the main house. One of the sheds has been fitted with power and lighting. To the front, the home has been tastefully landscaped, with evergreen shrubs softening the approach and adding year-round greenery along one side of the generous Indian Sandstone driveway. A secure side passage on the opposite side provides practical access to the rear garden, ensuring convenience without compromising on kerb appeal.
EPC Rating: D64
Council Tax Band: F
An Anti-Money Laundering fee will be applicable to all purchasers at a cost of £18.00 per person.
-
Share this Property
View
Council Tax Band
Band F
Parking
Ask Agent
Garden
Ask Agent
Accessibility
Ask Agent
Tenure
Freehold
Electric
Ask Agent
Water
Ask Agent
Heating
Ask Agent
Broadband
Ask Agent
Sewerage
Ask Agent
Private rights of way
Ask Agent
Public rights of way
Ask Agent
Listed property
Ask Agent
Restrictions
Ask Agent
Flooded in last 5 years
Ask Agent
Flood defenses
Ask Agent
Source of flood
Ask Agent

