< Back to search results
Selsdon Road, Wanstead
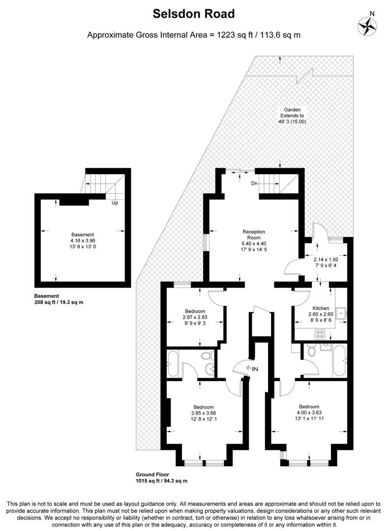
Petty Son & Prestwich are delighted to present this truly exceptional three-bedroom, ground floor, double-fronted Victorian conversion, offering an impressive 1,223 square feet of beautifully appointed accommodation with direct access to immaculate communal gardens.
- Three bedroom apartment
- Ground floor
- Direct access to the communal gardens
- Ensuite bathroom to principle bedroom
- Family bathroom
- Utility area
- 0.4 miles to Wanstead Station
- Spacious basement room
Situated just moments from the vibrant energy of Wanstead High Street (0.4miles), this unique home enjoys an enviable location surrounded by independent cafés, boutique shops, and highly regarded eateries. Leytonstone Station is only 0.6 miles away, providing excellent transport links into Central London, and the area benefits from a selection of outstanding local schools, making it an ideal spot for professionals and families alike.
As you approach the property, the striking double-fronted façade immediately captures attention, complemented by a traditional black-and-white mosaic tiled pathway and well-maintained period brickwork.
Stepping inside, you are welcomed by high ceilings and generous proportions that reflect the grandeur of the building’s Victorian heritage.
The home offers three spacious bedrooms, two of which are comfortable doubles featuring elegant square bay windows that flood the rooms with natural light. An en-suite bathroom adds a touch of luxury to the principal bedroom, while a modern stylish family bathroom serves the rest of the home with convenience.
At the heart of the property lies a high-gloss modern kitchen, complete with black granite worktops and an adjoining utility area that adds practical appeal to the space.
To the rear, a stunning lounge and dining area provides an expansive setting for relaxing or entertaining, with dual-aspect windows and patio doors that open directly onto a beautifully maintained communal garden.
This serene outdoor space includes a communal shed and benefits from side access. The property also boasts a large, tanked basement accessed from the lounge and the property comes with allocated parking. Combining period charm with modern living and situated in one of East London’s most sought-after neighbourhoods, this rare and spacious conversion is not to be missed.
Council Tax Band: C
EPC Rating: D64
Lease Information: 99 years from 25th March 1998 (71 years currently remain)
The lease will be extended upon completion (Term to be confirmed).
Service Charge: £112 per month
Ground Rent: N/A
An Anti-Money Laundering fee will be applicable to all purchasers at a cost of £18.00 per person.
-
Share this Property
View
Council Tax Band
Band C
Parking
Ask Agent
Garden
Ask Agent
Accessibility
Ask Agent
Tenure
Ask Agent
Electric
Ask Agent
Water
Ask Agent
Heating
Ask Agent
Broadband
Ask Agent
Sewerage
Ask Agent
Private rights of way
Ask Agent
Public rights of way
Ask Agent
Listed property
Ask Agent
Restrictions
Ask Agent
Flooded in last 5 years
Ask Agent
Flood defenses
Ask Agent
Source of flood
Ask Agent

